The Seal Beach City Council unanimously approved the Ocean Place project Monday night, July 9.
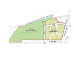
If the California Coastal Commission issues a Coastal Development permit, Bay City Partners will donate 6.5 acres of land to Seal Beach.
At a previous council meeting, two council members said they would not vote in favor of the project unless the property owners gave the land to the city. Seal Beach had previously agreed to purchase the land for $1.1 million in an out of court settlement. However, the state recently denied the city’s authority to spend $1.1 million in redevelopment funds on the potential park site.
City Attorney Quin Barrow said two of the Bay City Partners’ signatures were still needed, but two of the partners were in Scotland at the time.
The project manager for Bay City Partners said the green fence surrounding the 10.9 acre property would come down by Sept. 28.
Subhead: Land donation confirmed
District 1 Councilwoman Ellery Deaton said she had read in the newspaper that the partners would agree to donate the land, but she wanted to be sure. The property, formerly owned by the Los Angeles Department of Water and Power, is located in her district.
Ed Selich, project manager for the so-called Ocean Place project, smiled and confirmed that Bay City would donate the land designated for open space to Seal Beach. As previously reported in the Sun, Selich had informed the Sun that the partners would donate the land in a June 30 e-mail.
Deaton wanted to be sure that the newest version of the specific plan spelled out clearly. She wanted the specific plan, the legal description of the property and the tract map to be in agreement.
“I expect this document to be consistent within itself and not contain any contradictory statements,” Deaton said.
Controversies over the property boundaries and the definitions of the open space area versus the development area have hovered over the proposed project for approximately two years.
City Attorney Quinn Barrow said no residential lots could be built south of the imaginary prolongation of Central Way, a line that divides the “open space” section of the Bay City Partners property from the proposed 32-home development section.
Buyers have two years to build
Community Development Director Greg Hastings said lots would have to be developed within two years after sale.
Barrow said the two-year rule would be triggered by the sale of individual lots.
District 2 Councilman David Sloan asked if someone could buy and combine two of the lots.
Barrow said yes. He said it would be over reaching for the city to prohibit someone from buying and combining lots.
Barrow said Seal Beach was waiving the Quimby fees for the residential lots as part of the agreement that would have Bay City Partners donate the open space land.
“You’re better off with the land, not the money,” Barrow said.
Barrow pointed out that two of the Bay City Partners’ signatures were still required to complete the agreement. However, two of the partners were in Scotland. Barrow said he expected the city to have those signatures by July 18.
The public hearing on the project was closed at the previous council meeting. The public’s only chance to comment on the issue was during the “oral communications” or public comment segment of the council meeting.
Only one resident spoke. Mike Buhbe urged the council to send the project back to the Planning Commission for further consideration. “It will be your legacy,” he said.




